diseñamos espacios para Grandes Historias

Válido por una Asesoría Virtual para 2 ambientes de interior.


ESTO ES PARA VOS SI:


Tenés el deseo de renovar o diseñar desde 0 un ambiente de tu casa, contás con algunas ideas en cuanto al estilo pero no sabés bien cómo ejecutarlas. Esta consultoría te permitirá volcar esas ideas en un proyecto profesional y completamente armado por expertos, para que vos mismo lo puedas concretar.


Incluye:


  1. Imágenes de referencia.
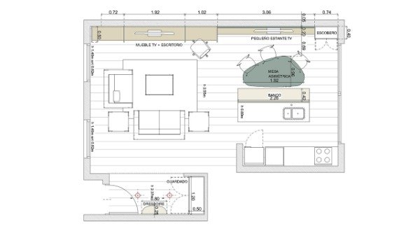
  2. Planos de disposición de muebles y objetos.
  3. MoodBoard inspiracional.
  4. Modelado tridimensional.
  5. Links de productos para la compra.


Aclaraciones:


  • Las medidas del ambiente serán otorgadas por el cliente.
  • Se coordinarán 2 reuniones virtuales
  • Se incluye una corrección por ítem
  • Los planos no son ejecutivos, tienen calidad de boceto.
  • Los renders se cotizan aparte
  • El cliente se compromete a responder a las entregas en un plazo de no mas de 2/3 días.


Condiciones:


  • La consultoría tendrá una duración total de entre 20-30 días


Válido por una Asesoría Virtual para 2 ambientes de interior.


ESTO ES PARA VOS SI:


Tenés el deseo de renovar o diseñar desde 0 un ambiente de tu casa, contás con algunas ideas en cuanto al estilo pero no sabés bien cómo ejecutarlas. Esta consultoría te permitirá volcar esas ideas en un proyecto profesional y completamente armado por expertos, para que vos mismo lo puedas concretar.


Incluye:


  1. Imágenes de referencia.
  2. Planos de disposición de muebles y objetos.
  3. MoodBoard inspiracional.
  4. Modelado tridimensional.
  5. Links de productos para la compra.


Aclaraciones:


  • Las medidas del ambiente serán otorgadas por el cliente.
  • Se coordinarán 2 reuniones virtuales
  • Se incluye una corrección por ítem
  • Los planos no son ejecutivos, tienen calidad de boceto.
  • Los renders se cotizan aparte
  • El cliente se compromete a responder a las entregas en un plazo de no mas de 2/3 días.


Condiciones:


  • La consultoría tendrá una duración total de entre 20-30 días


Mi carrito